Senioren Woning
Algemeen:
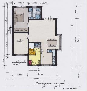
De basis woning is in stijl, maatvoering en indeling aan te passen naar je eigen woonwensen EN af te stemmen op de mogelijkheden binnen het bestemming- of beeldkwaliteitsplan met kavelpaspoort. De basisprijs, uitvoering sleutelklaar. Uitvoering casco op aanvraag.
Suggesties
Eigen idee of ontwerpvraag
Heb je een eigen ontwerp of idee voor jouw droomwoning? Geen probleem! Samen bekijken we je wensen en maken we een ontwerp wat past bij jouw budget en woonwensen. Casco of sleutelklaar opgeleverd!







