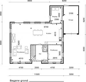
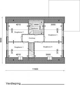
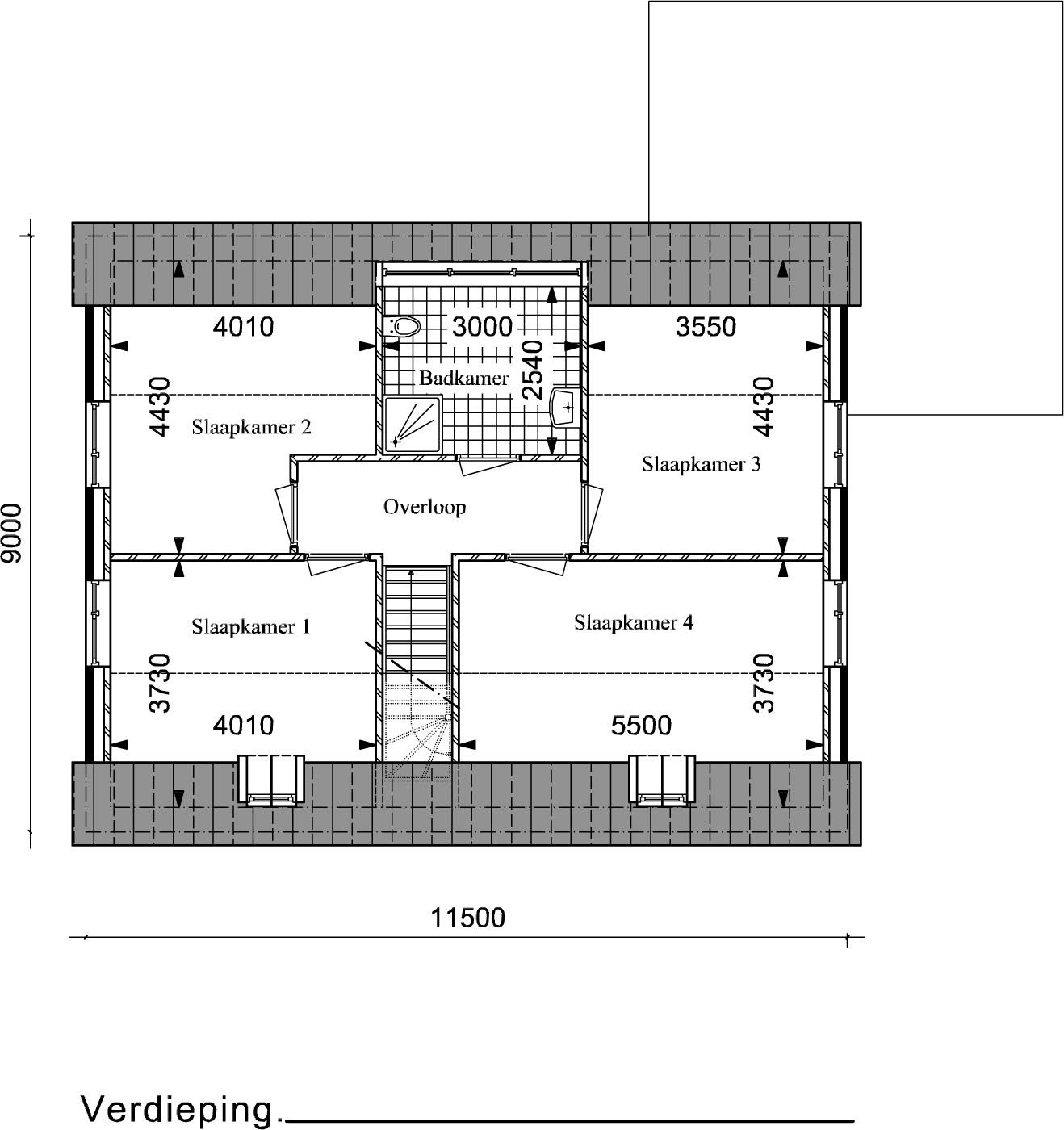
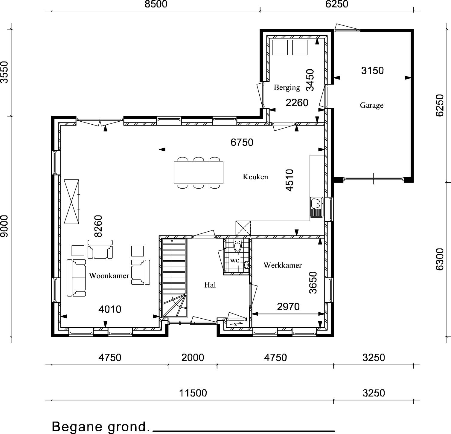
Type RW20
Basiswoning uitvoering sleutelklaar is o.a. inclusief:
- Architect- en constructeurs kosten, uitwerking aanvraag omgevingsvergunning
- Energieprestatie volgens BENG
- Houten gevelkozijnen met draaikiepramen
- Set terrasdeuren
- Stomp houten binnendeurkozijnen met binnendeuren
- Lucht-water warmtepomp
- Vloerverwarming op de begane grond en eerste verdieping
- (Actieve) koeling op de vloerverwarming
- 8 stuks zonnepanelen met omvormer
Algemeen:
Door continue veranderingen in de prijzen van bouwmaterialen heeft Rowecobouw besloten om de basis prijzen tijdelijk van de website te halen. Wil je een passende prijsopgave voor jouw nieuwbouwwoning, neem dan vrijblijvend contact met ons op.
Suggesties
Eigen idee of ontwerpvraag
Heb je een eigen ontwerp of idee voor jouw droomwoning? Geen probleem! Samen bekijken we je wensen en maken we een ontwerp wat past bij jouw budget en woonwensen. Casco of sleutelklaar opgeleverd!







