Categorie: Tag:

Basisplattegronden

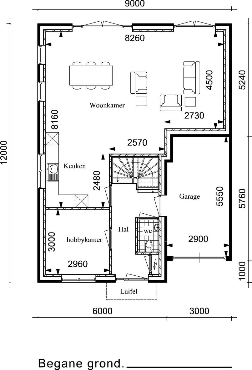
Type RW34 Type RW34

Alternatieve bouwstijlen

Type RW34

Basiswoning uitvoering sleutelklaar is o.a. inclusief:

  • Architect- en constructeurs kosten, uitwerking aanvraag omgevingsvergunning
  • Energieprestatie volgens BENG
  • Houten gevelkozijnen met draaikiepramen
  • Set terrasdeuren
  • Stomp houten binnendeurkozijnen met binnendeuren
  • Lucht-water warmtepomp
  • Vloerverwarming op de begane grond en eerste verdieping
  • (Actieve) koeling op de vloerverwarming
  • 8 stuks zonnepanelen met omvormer

Algemeen:

Door continue veranderingen in de prijzen van bouwmaterialen heeft Rowecobouw besloten om de basis prijzen tijdelijk van de website te halen. Wil je een passende prijsopgave voor jouw nieuwbouwwoning, neem dan vrijblijvend contact met ons op.

Maak een afspraak

Bekijk onze werkwijze

Vorige Woning – Volgende Woning

Suggesties

Eigen idee of ontwerpvraag

Heb je een eigen ontwerp of idee voor jouw droomwoning? Geen probleem! Samen bekijken we je wensen en maken we een ontwerp wat past bij jouw budget en woonwensen. Casco of sleutelklaar opgeleverd!